3 Windows On St Mark - Canal View Apartment
Fondamenta Sant'Eufemia, 30133 Venezia (VE)
Giudizio degli ospiti:
9.4
Magnifico
(53 recensioni)
Appartamento con 1 camera
Descrizione
A 400 metri da Santa Maria della Grazia, 3 Windows on St Mark - Canal View Apartment si trova in zona Giudecca a Venezia. Con la vista sulla città e sul mare, questo appartamento presenta anche WiFi gratuito.
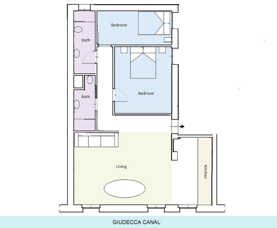
Questo appartamento con aria condizionata comprende 2 camere da letto, un soggiorno, una cucina con utensili, frigorifero e macchina da caffè, e 2 bagni con doccia e asciugacapelli. Presso questo appartamento troverete asciugamani e lenzuola tra i servizi offerti.
Aeroporto di Venezia Marco Polo si trova a 17 km dalla struttura.
Questo appartamento con aria condizionata comprende 2 camere da letto, un soggiorno, una cucina con utensili, frigorifero e macchina da caffè, e 2 bagni con doccia e asciugacapelli. Presso questo appartamento troverete asciugamani e lenzuola tra i servizi offerti.
Aeroporto di Venezia Marco Polo si trova a 17 km dalla struttura.
Selezionare le date per vedere prezzi, disponibilità e offerte
3 Windows On St Mark - Canal View Apartment, Venezia: Camere
| Appartamento con 2 Camere da Letto (100m2) |
This spacious apartment comes with 1 living room, 2 separate bedrooms and 2 bathrooms with a walk-in shower and a hairdryer. Meals can be prepared in the kitchen, which features a stovetop, a refrigerator, a dishwasher and kitchenware. The air-conditioned apartment features a flat-screen TV with streaming services, a washing machine, soundproof walls, a tea and coffee maker as well as sea views. The unit has 3 beds.
Servizi
- Accesso con chiavi
- Appartamento privato in edificio
- Aria condizionata
- Armadio o guardaroba
- Asciugacapelli
- Asciugamani
- Asciugatrice
- Bagno privato
- Bagnoschiuma
- Biancheria per la casa
- Bollitore elettrico
- Bollitore tè/macchina caffè
- Cabina armadio
- Calici da vino
- Carta igienica
- Cucina
- Cuscino non di piume
- Divano
- Divano letto
- Doccia
- Doccia a filo pavimento
- Ferro da stiro
- Forno a microonde
- Frigorifero
- Giochi da tavolo/puzzle
- Insonorizzazione
- Lavastoviglie
- Lavatrice
- Macchina da caffè
- Parquet o pavimento in legno
- Pattumiere
- Piano cottura
- Presa elettrica vicino al letto
- Radio
- Riscaldamento
- Scrivania
- Servizi igienici aggiuntivi
- Servizio streaming (per es. netflix)
- Shampoo
- Stand appendiabiti
- Stendibiancheria
- Stirapantaloni
- Tavolo da pranzo
- Teli
- Tostapane
- Tv
- Tv a schermo piatto
- Utensili da cucina
- Vasca o doccia
- Ventilatore
- Vista
- Vista città
- Vista cortile interno
- Vista luogo di interesse
- Vista mare
- Wc
- Zanzariera
- Zona pranzo
- Zona soggiorno
Servizi
Servizi generali
- Camere non fumatori,
- Disponibilità di camere familiari,
- Riscaldamento,
- Struttura interamente non fumatori,
- Aria condizionata,
- Wifi disponibile ovunque
Internet
- Connessione internet,
- Wifi,
- Connessione wifi gratuita
Intrattenimento e servizi per le famiglie
- Giochi da tavolo/puzzle
Distanziamento fisico
- Check-in e check-out "contactless" (senza contatto),
- Pagamenti elettronici disponibili
Pulizia e sanificazione
- Lenzuola, asciugamani e bucato lavati secondo le linee guida delle autorità locali,
- Gli alloggi vengono disinfettati tra un soggiorno e l'altro,
- La struttura viene pulita da imprese di pulizie professioniste
Condizioni Generali
Orari di arrivo e partenza
Check-in: 15:00 - Check-out: 10:30Informazioni Importanti
La struttura non è disponibile per feste di addio al nubilato/celibato o simili. Siete pregati di comunicare in anticipo a l'orario in cui prevedete di arrivare. Potrete inserire questa informazione nella sezione Richieste Speciali al momento della prenotazione, o contattare la struttura utilizzando i recapiti riportati nella conferma della prenotazione.Al check-in gli ospiti devono esibire un documento d'identità con foto e una carta di credito. Siete pregati di notare che le Richieste Speciali sono soggette a disponibilità, e potrebbero comportare l'addebito di un supplemento.
Struttura gestita da un host privato
Età minima per il check-in
22Sono consentiti animali domestici
NoVerifica CIN (Codice Identificativo Nazionale)
È possibile verificare la regolarità del CIN della struttura sul sito del Ministero del Turismo: Ricerca CINLocalità vicino a 3 Windows on St Mark - Canal View Apartment, Venezia
- 2 km Venezia 2000
- 10 km Cavallino-Treporti 2000
- 11 km Mestre 2000
- 15 km Marcon 1011
- 15 km Spinea 1056
- 17 km Mira 843
- 17 km Mogliano Veneto 1010
- 18 km Quarto d'Altino 440
- 19 km Mirano 769
- 19 km Casale sul Sile 466
Punti di interesse vicino a 3 Windows on St Mark - Canal View Apartment, Venezia
Monumenti
- 0.6 km Isola di San Giorgio Maggiore 4318
- 1 km Santa Maria Gloriosa dei Frari 4329
- 3 km Isola di Murano Bressagio 4249
Musei e Biblioteche
- 0.8 km Museo del Risorgimento e dell'Ottocento Veneziano 4324
- 0.8 km Palazzo Ducale 4324
- 0.8 km Galleria dell'Accademia 4330
- 0.8 km Mostra dei Cimeli della Biblioteca Nazionale Marciana 4325
- 0.9 km Tesoro della Basilica di San Marco 4326
- 0.9 km Museo Archeologico 4325
Stazioni
- 2 km Venezia Santa Lucia 4338
Ospedali
- 2 km Ospedale Classificato Fatebenefratelli 4345
Teatri
- 3 km La Fenice 4352
Aeroporti
Porti
- 7 km Passo Campalto 4390
Ristoranti vicino a 3 Windows on St Mark - Canal View Apartment
Ristoranti vicino a 3 Windows on St Mark - Canal View Apartment
-
Pizzeria da Sandro
Calle Drio La Croce, 30133 Venezia (VE) -
Al gondolieri
Giudecca, 30133 Venezia (VE) -
Al Redentor
Giudecca, 30133 Venezia (VE) -
Ai Gondolieri
Dorsoduro, 30123 Venezia (VE) -
Al Storico da Crea
Giudecca, 30133 Venezia (VE) -
Ai Cacciatori
Fondamenta Del Ponte Picolo, 30133 Venezia (VE) -
La Calcina
Dorsoduro, 30123 Venezia (VE) -
Harry's Bar Cipriani
Calle Vallaresso 1323, 30123 Venezia (VE) -
Ai Cugnai
Dorsoduro, 30123 Venezia (VE) -
San Trovaso
Dorsoduro, 30123 Venezia (VE) -
Gran Caffè Chioggia
Piazzetta San Marco, 30124 Venezia (VE) -
Antico Martini
Campo Teatro Fenice 2007, 30123 Venezia (VE)